685964805 esvibar@gmail.com

New flat, more confort to live

    2022

    Vila-real
    Esther Vidal Bartoll

    R&R Reformes Vila-real SL

    –

    60 mts

      €

Nuevas necesidades

El apartamento se sitúa en un bloque de viviendas de tipología ensanche, en una de las plantas intermedias y cuenta con una única fachada volcada al vial desde el cual se acede al edificio. Fue construido en 2001, desde ese instante no se había realizado ningún tipo de intervención sobre el mismo.

Su propietaria nos contacta con la intención de realizar una reforma, para adaptar la vivienda a sus nuevas necesidades.

Transcurridos 20 años desde su adquisición, la familia a crecido y tanto estilo de vida, como las prioridades de los usuarios de la vivienda se han visto alteradas.

Actualizar distribución

Realizada la primera toma de contacto con la vivienda y siendo informados de que carencias detectan los usuarios de la misma, les proponemos realizar una redistribución de la misma. Nos encontramos con un espacio muy fragmentas y desordenado, donde no existe una clara diferenciación entre la zona de día y de noche de la vivienda. Además, se pierden muchos metros en circulación, quedando pequeños para un uso confortable, tanto el baño, como la cocina y el minúsculo dormitorio secundario. No cuenta con ningún tipo de espacio que invite al teletrabajo o al estudio. Existe escasez de espacio de almacenaje en el interior de los dormitorios.

Cocina esvibar arquitectes reforma integral piso
Comedor cocina esvibar arquitectes reforma integral piso
Salón comedor acceso esvibar arquitectes reforma integral piso
Salón acceso esvibar arquitectes reforma integral piso
Baño esvibar arquitectes reforma integral piso
Baño esvibar arquitectes reforma integral piso

La propuesta genera espacios mucho más diáfanos y luminosos. Se elimina el vestíbulo de acceso cerrado, situando como primera estancia el salón comedor, donde anteriormente se encontraba el dormitorio principal. Se abre la estancia ocupada por la cocina a este, quedando integrada en el mismo y contando con acceso directo al balcón, el único espacio exterior con el que cuenta el apartamento. Resolviendo en un único gran espacio de convivencia la zona de día de la vivienda.

En la zona más íntima, se amplia el espacio ocupado por el baño, que vuelca ahora a un pequeño distribuidor, que da acceso a sendos dormitorios. Se amplia el dormitorio secundario, añadiéndolo el obsoleto espacio que daba acceso a la cocina, generando una zona de vestidor e incorporando un escritorio bajo la ventana del mismo. El dormitorio principal se sitúa en el espacio que ocupaba el antiguo salón, dotándolo de un amplio vestidor y una pequeña oficina privada.

Baño esvibar arquitectes reforma integral piso
Baño esvibar arquitectes reforma integral piso
Baño esvibar arquitectes reforma integral piso
Baño esvibar arquitectes reforma integral piso

El baño

Cobra protagonismo como espacio de nexo entre la zona pública y privativa de la vivienda. Ampliado y renovado, cuenta con una puerta corredera integrada en el muro para no restarle ni un ápice de funcionalidad. Se recurre a un juego de color, con contraste entre el blanco que purifica y dota de sensación de amplitud al espacio y el negro, que transmite elegancia y diseño al espacio, mediante su uso en los detalles. Cuenta con una nota de color, mediante el amplio plato de ducha mostaza, que capta la atención del usuario y le resta la excesiva seriedad que transmiten el resto de elementos. Se equipa con un mueble de amplia capacidad para resolver el almacenaje, bajo sendos senos y un espejo correctamente iluminado.

Los materiales

La paleta de color y los materiales elegidos tanto para los revestimientos y mobiliario del apartamento, juegan a favor de generar sensación de continuidad y espacio abierto. Se utiliza una tarima vinílica imitación madera de tono claro para el pavimento de toda la vivienda, a excepción del baño, que por tratarse de una zona húmeda se dispone un porcelánico gris. Las puertas de paso interiores renovadas y el revestimiento interior de la puerta de acceso, se resuelve mediante madera veteada muy clarita, integrándose a la perfección con el pavimento. La pintura de la práctica totalidad de los paramentos es blanca, disponiendo luminarias leed empotradas en los falsos techos, también con marco blanco para que pasen desapercibidas.

Cocina esvibar arquitectes reforma integral piso
Cocina esvibar arquitectes reforma integral piso
Cocina esvibar arquitectes reforma integral piso
Cocina esvibar arquitectes reforma integral piso
Acceso esvibar arquitectes reforma integral piso

La cocina

Integrada en el salón comedor, combina el color arena con el blanco en su mobiliario. Se disponen los electrodomésticos de cristal de la serie balay en blanco, quedando totalmente integrados en el conjunto. Se reviste la bancada con un solid suface blanco y el frontal mediante láminas de vidrio templado utilizando el mismo tono que el mobiliario.

El resto de la estancia combina el mobiliario de madera natural, con las tapicerías en arena. Además, se recupera una antigua mesa que ha permanecido en la familia desde antaño, de color crema, en la cual se aprecia el paso del tiempo, como mueble de recibidor. Sobre esta se dispone diversos objetos personales, totalmente integrados en la decoración de este espacio, con una paleta base de rosa palo, dotando de personalidad y carácter al acceso de la vivienda.

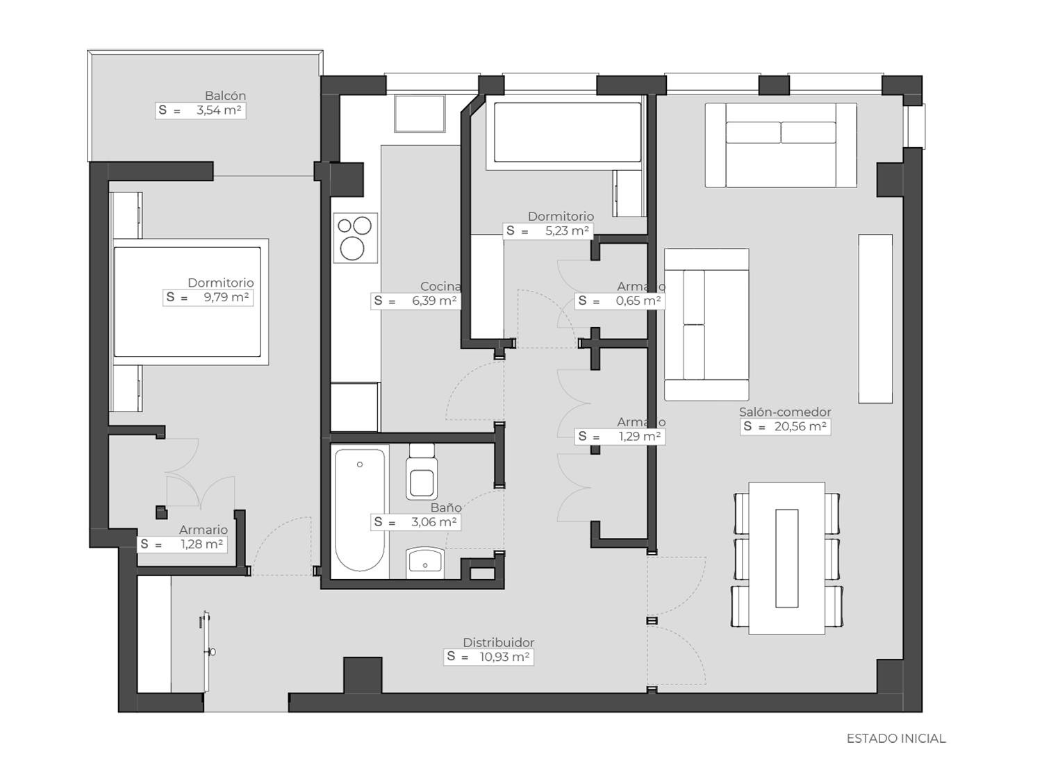
Planimetría

La mejor forma de entender un proyecto es la lectura o visualización de sus planos, aquí tenéis una pequeña muestra de este proyecto.

Fotografías de Ana Ferrero.

Plano distribución reformado esvibar arquitectes reforma integral piso
Plano distribución antes esvibar arquitectes reforma integral piso

Contacto

2 + 14 =