685964805 esvibar@gmail.com

Villa Luca, juego de volúmenes

    2019-2021

    Provincia Castellón

    Esther Vidal Bartoll

    Construcciones ALC

    Borja Ferrandis Franch

    210 mts

      €€€€€

Zona costera

Villa Luca se enclava en un entorno de carácter marítimo urbanísticamente consolidado, en la provincia de Castellón, ubicada en una parcela esquinera a 750 metros del Mar Mediterrano. Aprovecha la superficie de la misma al máximo, situándose lo más retirada de los viales que permite la normativa municipal, generando dos tipos de espacio exteriores, el principal donde se aloja la piscina y la zona de estar y el secundario donde aparcar los vehículos, tender la ropa, almacenar enseres, etc.

Luces y sombras

Su volumetría nace del deseo de nuestros clientes de contar con un diseño a base de prismas puros, maclados entre ellos. La vivienda se compone de dos volúmenes principales a distintas alturas, interconectados por la caja de escaleras. La luz mediterránea destaca estos cuerpos, mediante la incidencia de la luz solar y la proyección de sus sombras. Se ha diseñado un vallado personalizado, con un ritmo de alturas que simula las olas del mar, enfatizando aún más el juego de luces y sombras.

Villa Luca plano planta esvibar arquitectes proyecto obra nueva
Villa Luca plano planta esvibar arquitectes proyecto obra nueva piscina
Villa Luca plano planta esvibar arquitectes proyecto obra nueva piscina
Villa Luca plano planta esvibar arquitectes proyecto obra nueva
Villa Luca plano planta esvibar arquitectes proyecto obra nueva piscina
Villa Luca plano planta esvibar arquitectes proyecto obra nueva piscina

Los materiales y revestimientos exteriores se centran en la paleta del gris, utilizando el blanco en uno de los volúmenes, contrastado con antracita para las fachadas, el gris cemento para los pavimentos e incluso el negro para revestir la piscina.

La piscina, en un lateral de la parcela, domina el espacio exterior, transmitiendo paz y serenidad al ambiente. En la parte frontal de la vivienda encontramos un gran terraza descubierta que cuenta con un pequeño porche volado a mayor altura.

Villa Luca esvibar arquitectes casa prefabricada recibidor hall proyecto interiorismo flores
Villa Luca esvibar arquitectes casa prefabricada interiorismo salón comedor chimenea sofá lampara
Villa Luca esvibar arquitectes casa prefabricada interiorismo salón comedor chimenea sofá lampara
Villa Luca esvibar arquitectes casa prefabricada interiorismo salón comedor chimenea sofá lampara

Hogar, dulce hogar

Accedemos al interior desde la zona central de la fachada principal, el vestíbulo nos recibe con un espejo que lo dota de amplitud, un mueble de almacenaje donde ordenar los zapatos y un bonito ramo de flores disecadas que aportan calidez. A la derecha, tras cruzar el hueco de la escalera, nos adentramos en un amplio salón comedor. El mobiliario se ha seleccionado con mucho gusto por los propietarios, cuidando hasta el último detalle, combinando el gris con un tono anaranjado mucho más hogareño. La zona destinada a comedor vuelca hacia el porche y se conecta directamente con la cocina mediante puerta corredera integrada en el muro.

Villa Luca esvibar arquitectes casa prefabricada cocina kitchen interiorismo obra nueva
Villa Luca esvibar arquitectes casa prefabricada cocina kitchen interiorismo obra nueva
Villa Luca esvibar arquitectes casa prefabricada cocina kitchen interiorismo obra nueva
Villa Luca esvibar arquitectes casa prefabricada cocina kitchen interiorismo obra nueva
Villa Luca esvibar arquitectes casa prefabricada porche mobiliario color interiorismo obra nueva

Cocinamos

El porche se conecta mediante un amplio ventanal de suelo a techo con la cocina. El gris antracita, tan presente en el exterior, se introduce mediante en el mobiliario y la bancada de la misma, combinado con una madera natural, a juego con el suelo interior de la vivienda. La cocina, equipada mediante los electrodomésticos Balay acabados en cristal, cuenta con una amplia encimera en forma de U. La zona de fuegos se localiza en la península, incrustándose un extractor de humos de última tecnología en el falso techo de la estancia. La cocina cuenta con espacio para tres comensales en la península. Las paredes se revisten con material cerámico de tonos blancos, con distintos relieves según la zona.

Villa Luca esvibar arquitectes interiorismo casa prefabricada proyecto obra nueva dormitorio suite
Villa Luca esvibar arquitectes interiorismo casa prefabricada proyecto obra nueva terraza suite
Villa Luca esvibar arquitectes interiorismo casa prefabricada proyecto obra nueva terraza suite

La suite

El dormitorio principal en suite de la vivienda lo encontramos en la planta primera, cuenta con vestidor, baño completo con ducha y bañera, un amplio espacio donde descansar y una preciosa terraza privada, donde gozar de intimidad al aire libre. La terraza se reviste con los mismos materiales que los espacios exteriores de la planta baja y el pavimento del vestidos y dormitorio tiene continuidad con el del interior, todos los revestimientos cerámicos son de la marca Halcón Cerámicas.

Villa Luca esvibar arquitectes detalles diseño vivienda nueva proyectos baño ducha suite
Villa Luca esvibar arquitectes detalles diseño vivienda nueva proyectos vestidor suite
Villa Luca esvibar arquitectes detalles diseño vivienda nueva proyectos baño bañera suite

El baño de la suite, se provee de todos los sanitarios deseados y espacio de almacenamiento, para que resulte un espacio funcional y confortable.

El vestidor se ha resuelto mediante la utilización de módulos de armariada de Ikea. Los mismos poseen una gran flexibilidad para definir el espacio interior de almacenamiento según las necesidades del usuario y son fácilmente adaptables en el tiempo a las nuevas necesidades que puedan surgir.

Villa Luca esvibar arquitectes interiorismo casa prefabricada dormitorio invitados proyecto obra nueva
Villa Luca esvibar arquitectes interiorismo casa prefabricada dormitorio infantil proyecto obra nueva
Villa Luca esvibar arquitectes interiorismo casa prefabricada dormitorio infantil proyecto obra nueva
Villa Luca esvibar arquitectes interiorismo casa prefabricada baño infantil azulejo metro proyecto obra nueva

Zona de descanso

Además, la casa cuenta con dos dormitorios dobles extra. En planta baja una amplia y luminosa habitación para los invitados y en planta primera el dormitorio infantil, han sido amueblados y decorados al detalle. El peque de la casa cuenta con su baño propio, donde se combinan con el blanco el verde mar y el naranja en perfecta armonía.

Villa Luca esvibar arquitectes detalles diseño vivienda nueva proyectos escalera barandilla
Villa Luca esvibar arquitectes detalles diseño vivienda nueva proyectos chimenea flotante pellet
Villa Luca esvibar arquitectes detalles diseño vivienda nueva proyectos lavandería aerotermia doble flujo ventilación mecánica
Villa Luca esvibar arquitectes detalles diseño vivienda nueva proyectos vallado exterior
Villa Luca esvibar arquitectes detalles diseño vivienda nueva proyectos Air Zone

Detalles y acabados

Asimismo, los detalles de acabados, así como la equipación extra, se han cuidado desde el inicio del proyecto. La escalera se reviste con la misma cerámica que el resto de la vivienda, la cual se ha mecanizado, para que realice correctamente la función de peldaño, tanto en el interior, como en el exterior.

El salón comedor cuenta con una chimenea de pellet flotante, que aportará confort psicológico a los habitantes los días más fríos. La vivienda está equipada con un equipo inteligente de la casa Daikin, de aire acondicionado por conductos en cada planta, con regulación de temperatura en cada una de las estancias, mediante la tecnología de Air Zone.

El espacio de lavandería, conectado con la cocina, se dota de mobiliario de almacenaje extra, albergando la producción de Agua Caliente Sanitaria mediante aerotermia y el equipo de ventilación de doble flujo con recuperador de calor.

Villa Luca esvibar arquitectes proyectos casa prefabricada obra nueva interiorismo despacho
Villa Luca esvibar arquitectes proyectos casa prefabricada obra nueva interiorismo despacho
Villa Luca esvibar arquitectes proyectos casa prefabricada obra nueva interiorismo baño
Villa Luca esvibar arquitectes interiorismo casa prefabricada cuarto infantil juegos proyecto obra nueva

Vivienda post-covid

La vivienda se proyectó con dos estancias extras, un gimnasio combinado con la sala de juegos en la planta baja y un luminoso despacho con dos puestos de trabajo en la planta primera. Junto con su espacio exterior y el equipo de ventilación forzada, con recuperador de calor, instalado a petición del promotor, cuenta con todos los extras posibles para trabajar y disfrutar del tiempo libre en familia, con total tranquilidad.

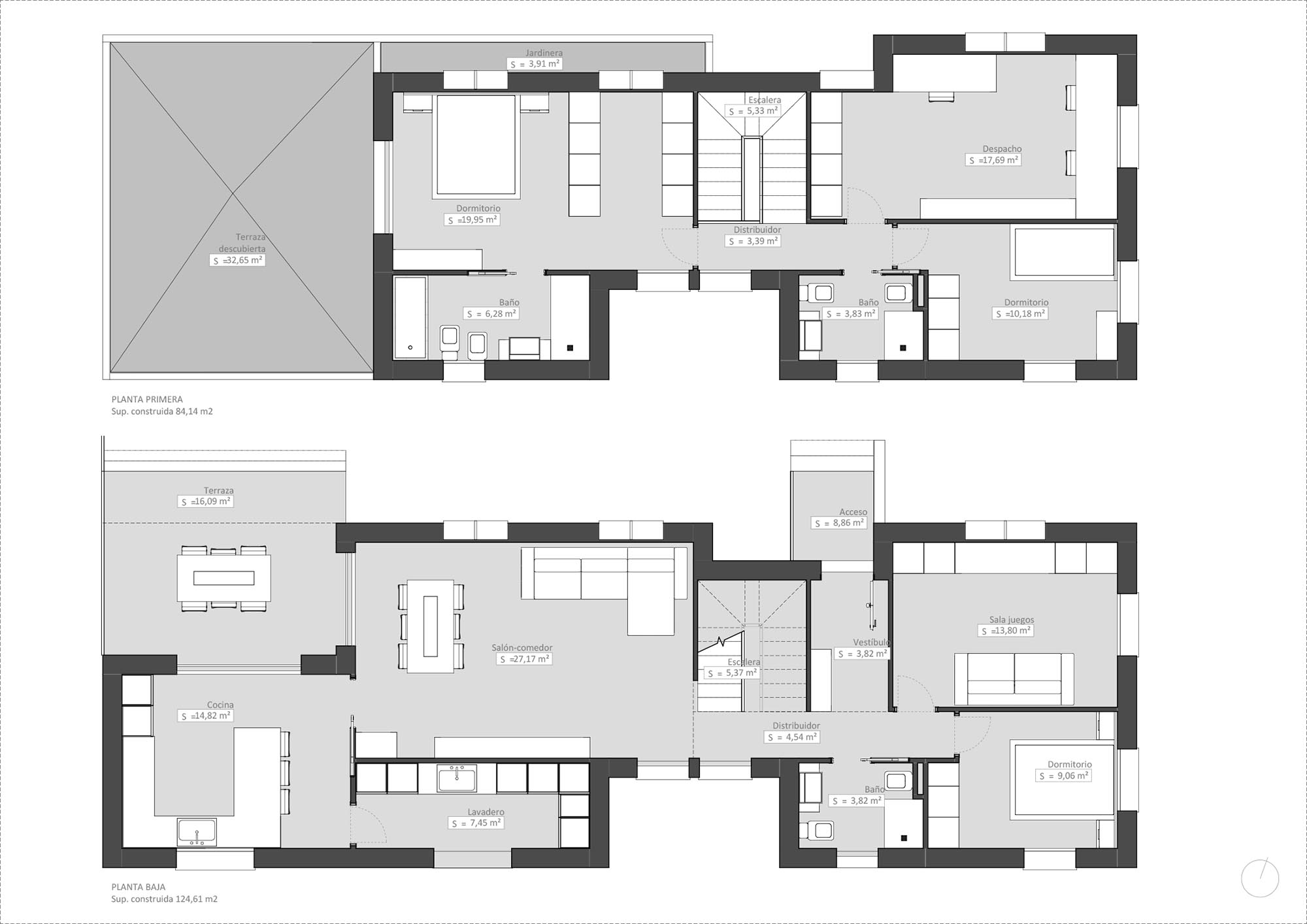
Planimetría

La mejor forma de entender un proyecto es la lectura o visualización de sus planos, aquí tenéis una pequeña muestra de este proyecto.

Fotografías de Ana Ferrero

Villa Luca plano planta esvibar arquitectes proyecto obra nueva alzados exterior
Villa Luca plano planta esvibar arquitectes proyecto obra nueva
Villa Luca plano planta esvibar arquitectes proyecto obra nueva secciones
Villa Luca plano planta esvibar arquitectes proyecto obra nueva secciones

Contacto

14 + 11 =