685964805 esvibar@gmail.com

Casa Grey Crest, decoración monocroma en grises

    2019-2020

    Vila-real

    Esther Vidal Bartoll

    Constructora Broch III

    Borja Ferrandis Franch

    290 mts

      €€€

Implantación

La casa Grey Crest se sitúa en la zona de ensanche más próxima al casco histórico del municipio de Vila-real, en la provincia de Castellón. El acceso a la vivienda se da desde su fachada principal, tanto peatonalmente como de forma rodada, puesto que la construcción se encuentra enclavada en una manzana de viviendas entre medianeras. Su nuevo volumen, ampliado en una planta, encaja a la perfección entre las construcciones colindantes de diferentes alturas. La edificación ocupa la totalidad de la parcela en planta baja, sin embargo, en la planta primera cuenta con un amplio y luminoso patio central. En este hemos dispuesto un lucernario, dotando de luz a la planta baja y el pequeño patinillo trasero ha quedado abierto en planta baja, suministrando iluminación y ventilación natural en la misma.

Ampliación

El volumen ampliado de planta segunda goza de una amplia terraza trasera, donde vuelca el dormitorio principal de la vivienda. Se ha materializado la ampliación mediante muros de carga de fábrica de arcilla aligerada, para la construcción de las fachadas y medianerías, que dan apoyo a la estructura de entramado metálica, donde se han anclado los paneles sándwich de la cubierta. Esta solución constructiva evita sobrecargar en exceso la estructura preexistente y a su vez constituye una piel aislante a los nuevos espacios que alberga esta planta. Se proyectó todo el interior de la envolvente con PUR, para garantizar el aislamiento térmico y la protección de la estructura en caso de incendio. Mediante los trasdosados y falsos techos de cartón yeso, se han rematado los espacios interiores.

Grey Crest esvibar arquitectes salon proyecto reforma integral
Grey Crest esvibar arquitectes comedor proyecto reforma integral
Grey Crest esvibar arquitectes acceso proyecto reforma integral
Grey Crest esvibar arquitectes cocina patio proyecto reforma integral
Grey Crest esvibar arquitectes cocina proyecto reforma integral

La zona de días se sitúa en la planta primera, cuenta con el salón comedor, al cual accedemos desde las escaleras, relacionado directamente con una amplia cocina que vuelca al patio central. Desde el interior de la misma accedemos a la habitación de juegos de los pequeños de la casa.

Además, la cocina cuenta con un espacio auxiliar de almacenamiento materializado mediante la lavandería que gracias a su gran tamaño realiza función de despensa. Esta planta también cuenta con un baño completo, que da servicio a la misma, al cual accedemos desde el rellano de las escaleras.  

Grey Crest esvibar arquitectes dormitorio proyecto reforma integral
Grey Crest esvibar arquitectes cabezal dormitorio proyecto reforma integral
Grey Crest esvibar arquitectes almacenaje dormitorio proyecto reforma integral
Grey Crest esvibar arquitectes dormitorio infantil proyecto reforma integral
Grey Crest esvibar arquitectes juegos proyecto reforma integral

Descanso

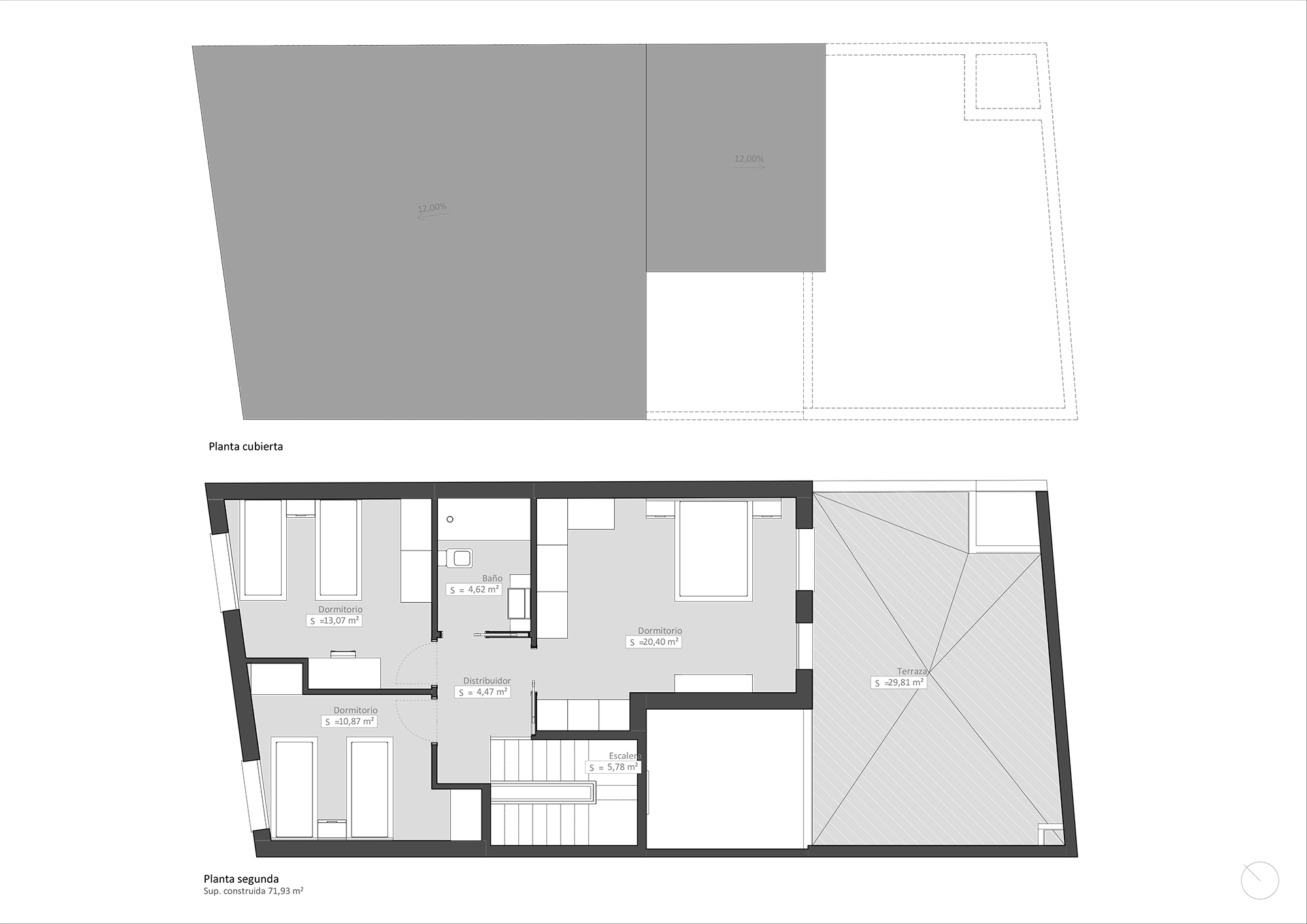
La segunda planta se destina a los dormitorios, distribuidos en espiral alrededor del vestíbulo, encontramos dos dormitorios de tamaño similar destinado al descanso de los pequeños de la casa. Al frente, el baño compartido, separa estas estancias de la suite principal, volcada a la terraza exterior. El dormitorio principal mucho más amplio y luminoso, cuenta con espacio suficiente para crear un pequeño vestidor abierto en su interior.

Grey Crest esvibar arquitectes fachada principal proyecto reforma integral
Grey Crest esvibar arquitectes fachada proyecto reforma integral
Grey Crest esvibar arquitectes vestíbulo escalera acceso proyecto reforma integral
Grey Crest esvibar arquitectes escalera proyecto reforma integral
Grey Crest esvibar arquitectes distribuidor proyecto reforma integral
Grey Crest esvibar arquitectes patio lucernario tragaluz proyecto reforma integral

Juego de grises

La vivienda se diseña con líneas rectas y una paleta de colores limitada, con el color gris como hilo conductor. La fachada principal refleja a la perfección esta decisión, recibiéndonos con un contundente zócalo cerámico, a juego con la carpintería exterior y los vierteaguas también cerámicos, en diferentes tonalidades de grises, contrastan con el resto de elementos blancos que la componen.

El vestíbulo, nos muestra un giño de la estética que vamos a encontrar en el interior, dotando al muro medianero de un zócalo cerámico se le ha dado continuidad a la fachada en este espacio interior. Cuenta, también, con pavimento cerámico y revestimiento de granito para los peldaños, todo de color gris. Los muros, las puertas, los techos, incluso las luminarias son de color blanco de blanco.  En cambio, la barandilla de la escalera, se laca en un tono beige harmonizando el conjunto y aportando un toque de carácter propio.

Los vestíbulos de las plantas superiores se pavimentan con tarima, en un tono de madera natural que aporta calidez al ambiente. La iluminación natural de la caja de escaleras, se produce mediante sendas ventanas que vuelcan al patio, inundando de claridad el espacio.

Grey Crest esvibar arquitectes patio cenital proyecto reforma integral
Grey Crest esvibar arquitectes baño gris proyecto reforma integral
Grey Crest esvibar arquitectes baño ceramica proyecto reforma integral

El patio

El patio central es la joya de esta casa, se trata de un espacio exterior y a su vez muy íntimo, donde gozar al aire libre la mayor parte del año en un microclima confortable. A su vez, ofrece a la vivienda la posibilidad de iluminar y ventilar adecuadamente sus estancias, creando ventilaciones cruzadas en el interior de la misma, se consigue un ambiente muy saludable. Además, la vivienda cuenta con dos baños completos, un aseo en planta baja y la lavandería, para el cuidado personal y la higiene necesaria de sus usuarios.

Grey Crest esvibar arquitectes baño invitados proyecto reforma integral
Grey Crest esvibar arquitectes baño textura proyecto reforma integral
Grey Crest esvibar arquitectes lavabo wc proyecto reforma integral
Grey Crest esvibar arquitectes baño mampara ducha textura proyecto reforma integral

Materialidad

La fachada se remata mediante enfoscado de mortero hidrófugo blanco, contrastando con las carpinterías, los vierteaguas mecanizados a partir de piezas cerámicas de gran formato y el zócalo en tonos grises.

En los interiores se escoge el color blanco para los paramentos verticales y techos, así como para la carpintería interior. Los pavimentos se resuelven mediante la utilización de diferentes formatos cerámicos en las zonas húmedas y la disposición de tarima de EGGER en tonos de madera natural. Los revestimientos verticales porcelánicos de baños y cocina, se escogen con muy buen criterio en de la colección de Pamesa, que combinan los relieves decorados con las bases de la misma serie.

En la cocina se apuesta por una bancada de material porcelánico de gran formato Neolith en color gris oscuro, a juego con los electrodomésticos acabados en cristal y la campana decorativa de la marca Balay. Los muebles y el alicatado blanco contrastan con estos elementos y con el zócalo de acero dispuesto como separador entre el plano horizontal del suelo gris oscuro y el mobiliario.

Planimetria

La mejor forma de entender un proyecto es la lectura o visualización de sus planos, aqui teneis una pequeña muestra de este proyecto.

esvibar arquitectos planos grey crest diseño proyecto reforma planta
esvibar arquitectos planos grey crest diseño proyecto reforma plantas
esvibar arquitectos planos grey crest diseño proyecto reforma Alzado
esvibar arquitectos planos grey crest diseño proyecto reforma sección

Contacto

14 + 14 =